Skip to main content

Leilighetene

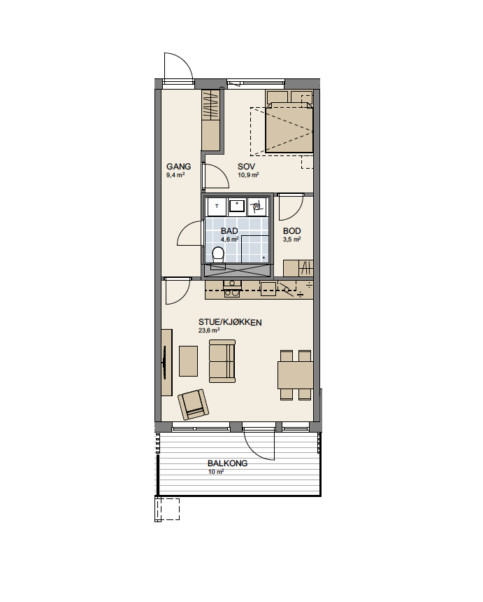
Leilighetene i Bovieran Falkum

Tilbake til prosjektside

Kvaliteter

Ditt nye kvalitetshjem

Fra den lyse og romslige stuen med åpen stue- kjøkkenløsning er det direkte adgang til enten en privat balkong eller terrasse på bakkeplan.

Kjøkkeninnredning leveres av Drømmekjøkken. På badet leveres 30×60 cm fliser på vegg og 30×60 cm fliser på gulv samt 5×5 fliser i dusjnisje. I tillegg leveres det varmekabler i badegulv. Ettgreps armatur på vask og sparedusj med termostat samt opplegg for vaskemaskin og tørketrommel. Resterende boareal leveres med 3-stavs eikeparkett. Dette er gode, lune og praktiske hjem med et sobert og tidsriktig uttrykk.

Finn din bolig

Leilighetene

Velg mellom 5 leilighetstyper

I Bovieran kan du velge mellom fem forskjellige leilighetstyper, alle med smarte og gjennomtenkte løsninger. De store, takhøye vinduene slipper inn mye lys og skaper en innbydende atmosfære.
Dette er våre 5 leilighetstyper:
2-roms – 55 kvm
3-roms – 66 kvm
3-roms – 65 kvm
3-roms – 76 kvm
3-roms – 85 kvm

Boligprosjektet

Pusterom i hverdagen

Uteområdene rundt byggene er pent opparbeidet med varierte funksjoner og kvaliteter. I forlengelse av vinterhagen er det også blitt opparbeidet en felles utendørs terrasse med sittegrupper. Stemningsskapende og avstemt belysning bidrar til å forlenge sommerfølelsen utover høsten, i tillegg til å skape gode og trygge uterom.

Alle leilighetene har direkte tilgang til vinterhagen og ved inngangspartiet til leilighetene er det etablert en liten privat sone hvor det er mulighet for å plasser et lite kafébord og et par stoler. Av hensyn til vekstene i vinterhagen vil det ikke være anledning til å ha egne planter eller blomster oppstilt her. Derimot vil det bli anledning til å skape din egen lille grønne oase på din private balkong eller terrasse.

Det er parkeringsplass i parkeringskjeller med trappefri adkomst via heis. Det medfølger 1 parkeringsplass pr. bolig. Det er også sykkelparkering for alle beboere. Hver leilighet har i tillegg en sportsbod til oppbevaring av sykler og annet utstyr.

Finn din bolig

Dette er et prosjekt av BoMer.
Besøk BoMer.no for mer informasjon om oss.

Følg oss på

BoMer er sertifisert som miljøfyrtårn

På nettsiden vår viser vi både boliger som er bygget og boliger som ikke er bygget enda – derfor bruker vi 3D visualiseringer og tekst for å beskrive de fine tingene vi er i ferd med å lage. Disse kan vise tilvalg eller gjelde andre leveranser enn den som er for akkurat boligen du ser på eller har bestemt deg for å kjøpe.

Sånn – da var forbeholdet avklart.